Tejina
Categoría
Cliente
Fecha
Estado
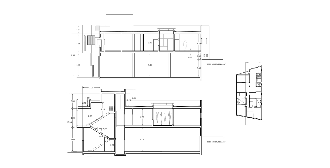
Este encargo nos llegó como una legalización de una vivienda autoconstruida, consistente en la típica tipología de “casa salón canaria” se encontraba ejecutada la totalidad de la estructura y las divisiones interiores de dos viviendas que se encontraban en planta alta. El encargo era unificar estas dos viviendas en una, y mantener la planta baja como garaje, acceso e instalaciones, además se adecuaría la fachada a una imagen más actual. Por lo tanto pasaría a ser una reforma integral con modificaciones puntuales en la estructura a fin de introducir más luz en la vivienda. Dada la planta alargada no quedo mas alternativa que optar por una distribución lineal, si bien la existencia de dos patios que serían agrandados favoreció la introducción de la luz en la vivienda y eliminó esa imagen de “vivienda pasillo” con la introducción de uno de ellos en la distribución. Respecto a la fachada se jugó con el volado existente y se busco las vistas privilegiadas que tenían sobre el mar, dando continuidad a la cubierta y abriendo el pretil de la misma.





