Bloque de viviendas en Carrizal
Categoria
Cliente
Fecha
Estado
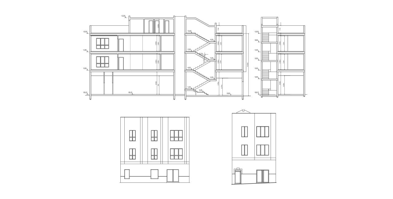
En este proyecto partimos de un bloque de cuatro plantas, con planta baja dedicada a local comercial y las tres superiores a oficinas. El edificio se encontraba desde hacía algunos años sin uso alguno y en estado de deterioro, en este caso el cliente nos propone hacer un cambio de uso a viviendas, por lo que se proyecta en planta baja dos locales comerciales y en las superiores seis viviendas repartidas a dos por cada planta.
Se establecen dos tipologías de vivienda diferenciadas por elementos de color que les dan un carácter alegre y modern. La tipología A consta de únicamente una habitación doble, mientras que la tipología B consta de una habitación doble y una simple, dando todas a fachada exterior.






