Reforma chalet
Categoría
Cliente
Fecha
Estado
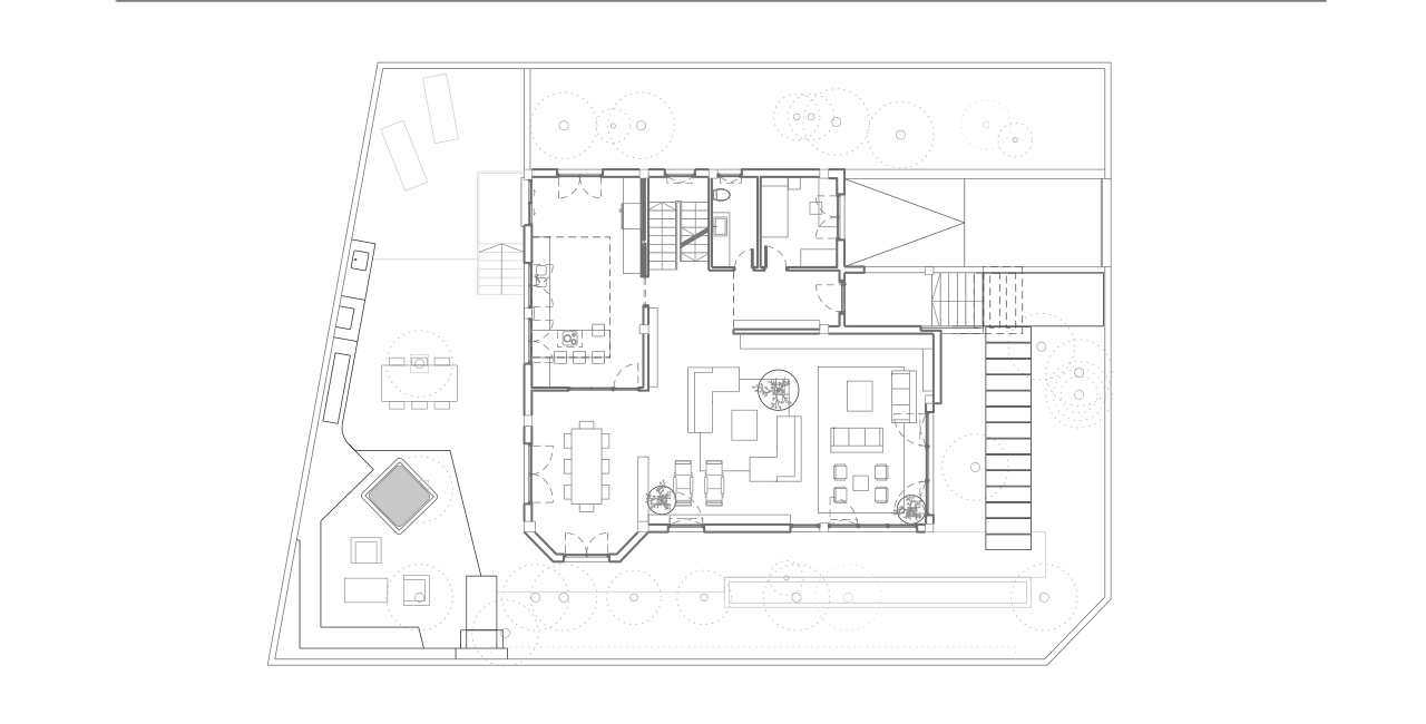
Este proyecto se enmarca en Sonnenland, encima del Campo Internacional de Maspalomas. La cliente compra una vivienda de dos plantas mas garaje en una parcela cercana a la vivienda de sus padres y decide realizar una reforma integral de la misma que le dé un carácter moderno y actual.
Al interior la vivienda posee espacios muy oscuros y cerrados, con ventanas retranqueadas que originan mucha sombra, por lo que se disponen todas las ventanas a ras de fachada, ampliando a su vez huecos, por lo que se consigue una vivienda mas luminosa y diáfana. Se utiliza como pavimento principal la madera, todas las carpinterías son renovadas, al exterior se quitan molduras y se colocan paneles fijos. El jardín es totalmente reformado, se cambia la puerta de acceso y en el patio posterior se construye un chill-out con jacuzzy.









