Nave Difa
Categoría
Cliente
Fecha
Estado
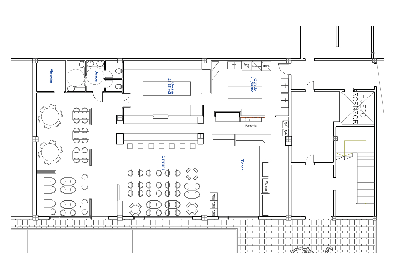
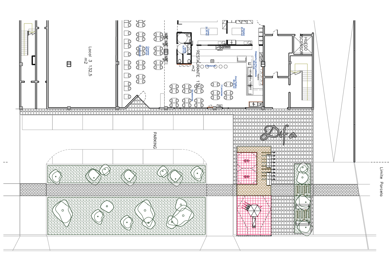
Se nos solicita por parte de uno de nuestro clientes habituales adecuar la imagen de una nave existente, recientemente adquirida por la compañía, a la marca, además se debe diseñar una tienda de unos 300 m2 en planta baja que dispondrá de una zona para el despacho del producto, una zona de cafetería y una zona de restauración. En planta alta se dispondrán las nuevas oficinas de la empresa en las que se ha buscado la diafanidad junto con una ambiente de trabajo en común y distendido.











