Taliarte
Categoría
Cliente
Colaborador
Fecha
Estado
Ejecución de la estructura (Octubre 2015)
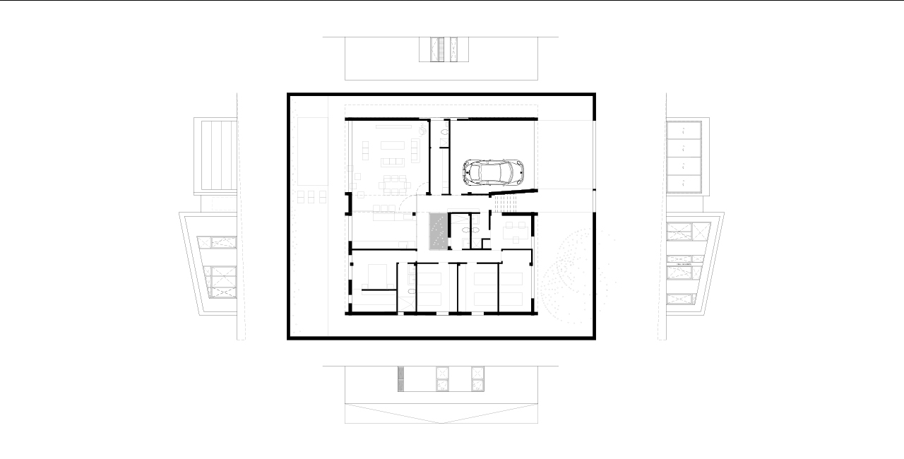
Se nos solicita por parte del cliente un programa muy exigente, salón-comedor-cocina, 4 habitaciones, despacho con acceso exterior y aseo, garaje de al menos 36 m2, suite con vestidor y baño propio así como aseo independiente para la piscina. La totalidad del programa se debe desarrollar en una sola planta ocupando dos parcelas (en total 500 m2) del nuevo desarrollo de Taliarte.
Una vez descontados los retranqueos, las opciones para encajar el programa se hacía cada vez más complicado darle respuesta a todo con calidad espacial y superficies adecuadas, la solución vino al adoptar el patio canario como base para la distribución interior, todas las circulaciones se producen en torno al mismo quedando implicado además directamente en la salón/cocina cuyo cerramientos pueden ser modificados para formar un solo espacio. La vivienda dispone de una distribución muy diáfana con cerramientos interiores de cristal lo que favorece las vistas entra las distintas estancias y la percepción de un espacio continuo sin obstáculos.


