Reforma vivienda c/Cádiz
Categoría
Cliente
Fecha
Estado
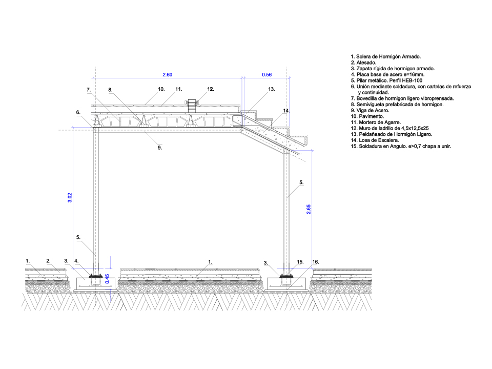
Proyecto complejo donde la cliente solicita tirar un muro de carga para conseguir un espacio interior diáfano. Nos situamos en un edificio antiguo donde se procede a apuntalar adecuadamente el forjado antes de retirar el muro para la posterior instalación de un pórtico metálico.







