Hostal Kasa
Categoría
Cliente
Fecha
Estado
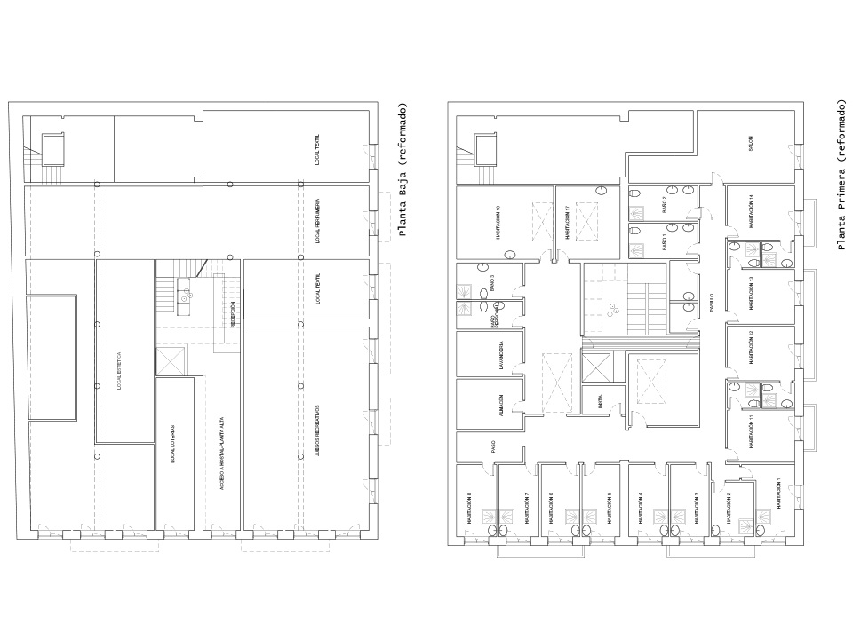
En esta ocasión el cliente nos solicita una remodelación de los accesos al hostal ya que fruto de un acuerdo le ha ganado metros a dos locales adyacentes. Se trata por tanto de trasladar la recepción a planta baja, introducir un nuevo ascensor accesible y mejorar los accesos por escaleras que actualmente están ubicados en el interior del edificio entre dos muros. La idea era conseguir introducir la luz en un espacio sombrío, para ello la escalera debía funcionar como un elemento propio que generaría en su contacto con la cubierta el tragaluz e iluminaria la totalidad del atrio. La dificultad en este proyecto radica en la intervención en un edificio catalogado de gran antigüedad, y en que se debía demoler parte de un muro de carga de sillares de 70 cm y reforzarlo con estructura metálica a fin de obtener la diafanidad que busca la intervención.





