Difa Zaragoza
Categoría
Cliente
Fecha
Estado
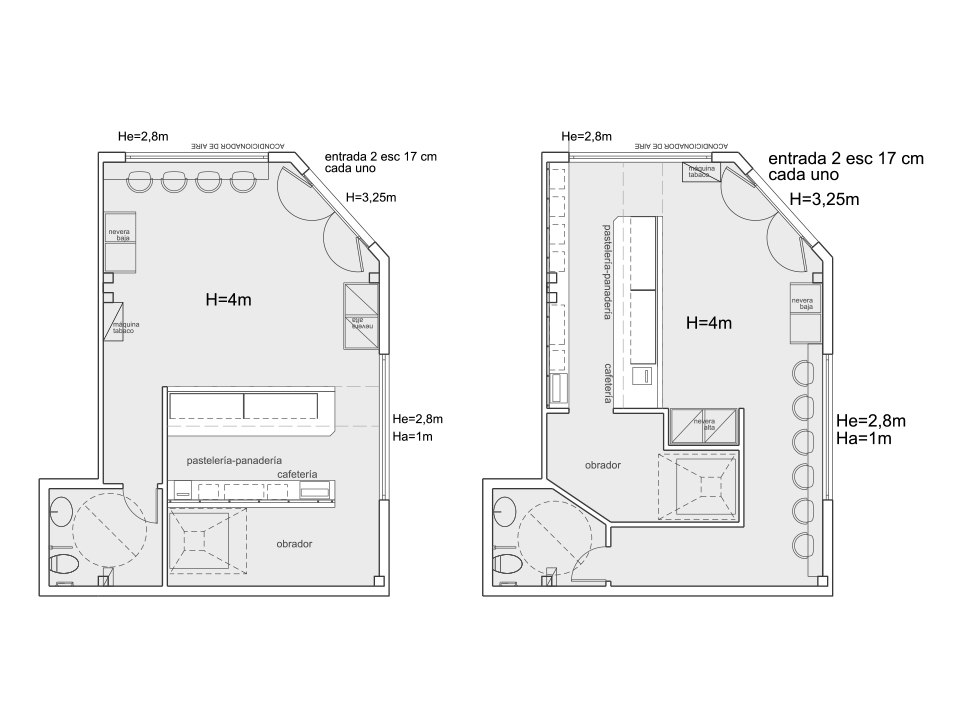
La empresa "Difa boutique´s del pan", con multitud de tiendas en la isla de Gran Canaria, pretende hacer un cambio de imagen de todos sus comercios con el fin de conseguir una imagen homogénea y actual. El cliente quiere conservar todas sus neveras de venta al público por lo que optamos en forrarlas con la misma madera, de igual modo proyectamos sobre las paredes unas lamas de madera donde se encajan unos cajones de madera iluminados para la venta de pan.





